Mixed use LUXURY and affordable RESIDENCES IN LA
Los Angeles, CA, USA
Examples of luxury and affordable mixed-use residential development in Los Angeles that blends high-end living with curated retail, fine dining, wellness amenities, and modern urban conveniences—offering residents an elevated lifestyle in a vibrant, walkable community designed for comfort, connection, and sophistication. We’ve integrated services, amenities, and urban farming as landscape and activation…
Mixed use residential and boutique hotel in the heart of West hollywood. with Corbel Architects
luxury mixed-use residential and village center in Beverly Hills, California. with Corbel Architects
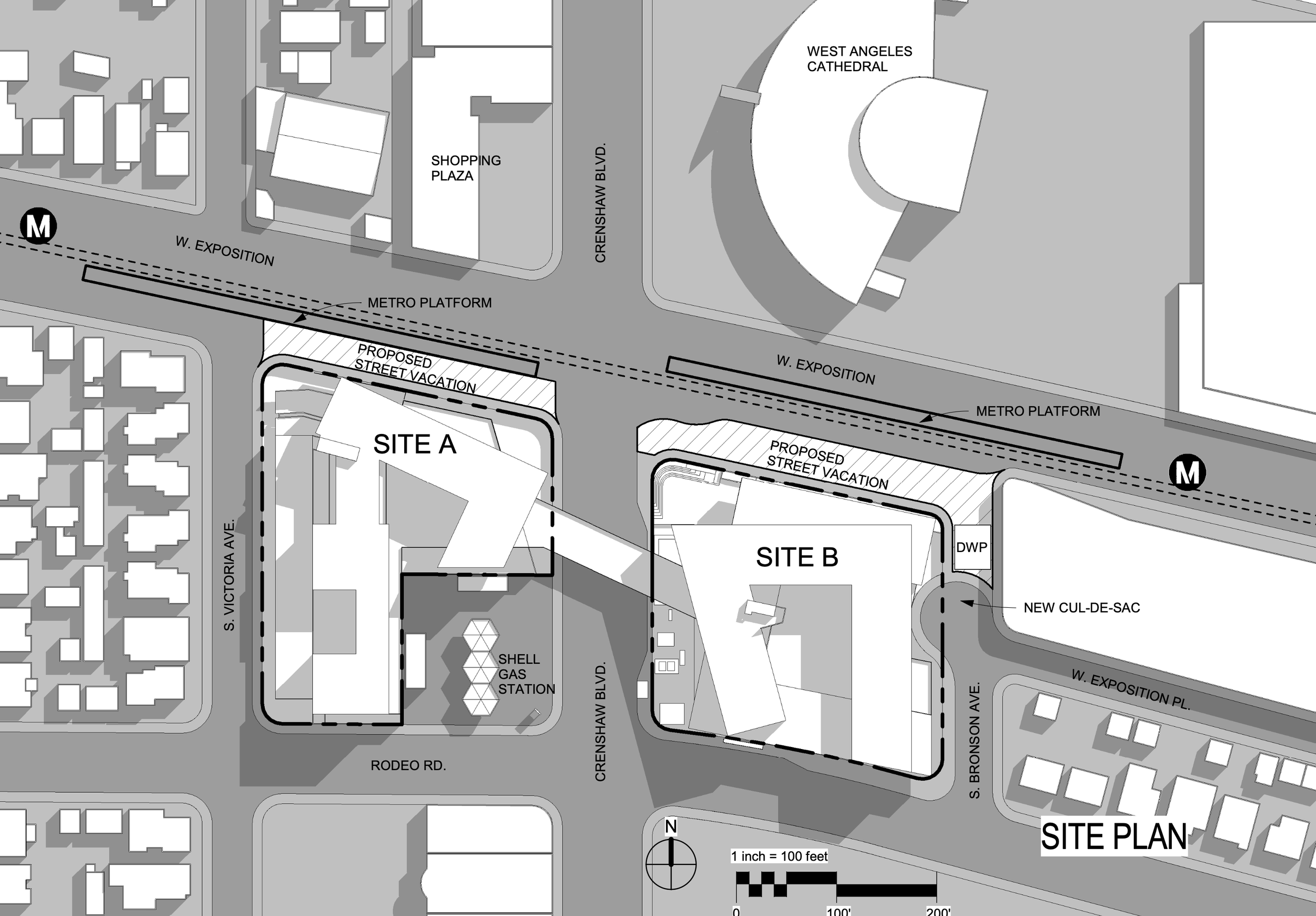
Innovative mixed-use affordable housing development concept for Crenshaw, california
